[PROJECT INFO] 현장명: 상암 누리꿈스퀘어 오피스 분류: 업무 공간 (미디어/크리에이티브 오피스) 위치: 서울특별시 마포구 월드컵북로54길 11 면적: 약 80평형 공사 기간: 2015. 10. 31. ~ 2015. 11. 10
EDITORIAL 상암 MBC 옆에 위치하여 다양한 크리에이터들의 열기로 가득한 누리꿈스퀘어. 이곳에 자리 잡은 80평 규모의 오피스 프로젝트는, 건물 특유의 활기찬 에너지와 창의적인 영감이 공간 안으로 자연스럽게 스며들도록 기획되었습니다. 짧고 집중적인 공사 기간 속에서도, 구성원들의 자유로운 소통과 몰입을 동시에 이끌어낼 수 있는 감각적이고 효율적인 디자인을 완성하는 데 초점을 맞추었습니다.
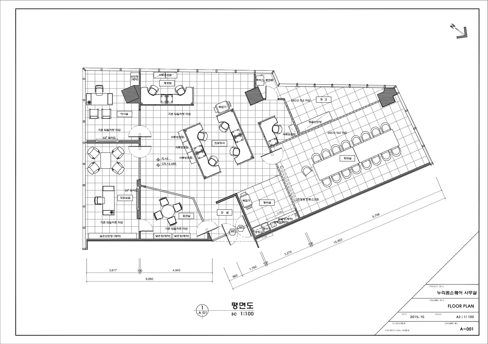
CHAPTER 1. 유연한 사고를 이끄는 개방형 레이아웃 다양한 아이디어가 오가는 미디어 오피스의 특성상, 공간이 단절되지 않도록 시야를 틔우는 데 집중했습니다.
무거운 가벽 대신 슬림한 프레임의 유리 파티션을 활용하여 회의실과 업무 공간을 분리하면서도 시각적인 연결성을 유지했습니다. 창밖으로 들어오는 채광이 공간 전체로 고르게 퍼지며, 넓고 쾌적한 개방감을 선사합니다.
CHAPTER 2.자유로운 아이디어가 교류하는 회의실 Concept: 투명한 소통과 완벽한 차음이 공존하는 아이디어 회의실. Design Detail: 회의실 벽면을 투명한 통유리로 마감하여 메인 오피스와의 시각적 단절을 없앴습니다. 내부에는 회의의 집중도를 높일 수 있도록 깔끔한 화이트보드 월(Wall)을 맞춤 제작하고, 방음 효과를 고려한 마감재를 적용하여 활발한 의견 교환에도 외부 업무에 지장을 주지 않도록 설계했습니다.
CHAPTER 3. 소통의 유연함과 리더의 무게감이 공존하는 공간 (업무 공간 및 대표실) Concept: 팀원 간의 원활한 소통과 리더의 프라이빗한 몰입을 동시에 충족하는 하이브리드 워크스페이스. Design Detail: 70평의 쾌적한 공간감을 극대화하기 위해 답답한 가벽 대신, 맞춤형 하프 파티션을 시공하여 개방감과 개인의 프라이버시를 동시에 확보했습니다.

DESIGNER’S INSIGHT "창의적인 생각은 유연하고 활기찬 공간에서 시작됩니다."
수많은 방송 관계자들이 오가는 역동적인 상암동의 인프라. 그 에너지에 발맞춰, 틀에 박힌 사무실이 아닌 영감이 샘솟는 워크스페이스를 만들고자 했습니다. 넉넉한 캔버스 위에 속도감 있고 정확하게 디자인을 입혀낸 이 공간에서, 앞으로도 수많은 멋진 콘텐츠와 아이디어들이 탄생하기를 응원합니다. - Yeum Atelier - |